Precio 209000€
Referencia 000681
Dirección 17005, Girona Capital - Girona
(Ubicación del Mapa)
Piso de 2ª mano
Habitaciones 4
Baños 1
Superficie Total 105 m²
Orientación Oeste
Antigüedad Entre 30 y 50 años
Año Construcción 1981
Certificación Energética

Descripción

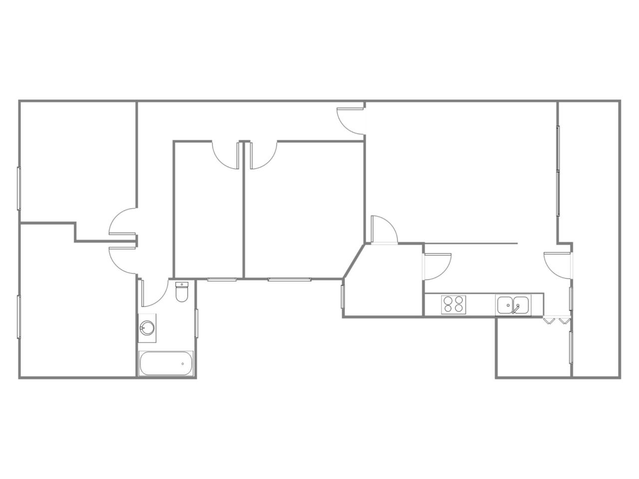
Piso en venta en Sant Narcís. Si estás buscando un inmueble amplio, aquí tienes una oportunidad inmejorable. Un piso en una buena Zona en la cual encontrarás muy buenas conexiones y con mucha proximidad al centro de la ciudad. Es un piso totalmente exterior con 4 habitaciones, dos de ellas dobles y una individual sencilla y una individual muy amplia. Además cuenta con un amplio comedor con salida a un balcón con muchísima luz, una cocina americana totalmente equipada con cocina de gas, ascensor en la finca y un baño completo con bañera. Para más información contacta con PM Espais.

Pide más información del Piso en venta en Sant Narcís de 2ª mano en Girona


Características

Muebles y acabados
  • Carpintería Exterior
  • Carpintería Interior
  • Suelos
Exteriores
  • Balcón
  • Exterior
  • Orientación
  • Soleado
Equipamientos e instalaciones
  • Ascensor
  • Calefacción
  • Cocina
  • Comedor
  • Gas
  • Interior
  • Lavadero
  • Portero Automático
Más detalles sobre las características

Inmuebles Similares